Umbau Bibliothek in Büros für das Obergericht Aargau
Aarau 2024
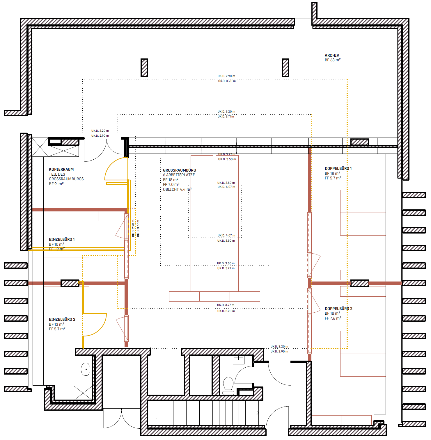
Im Ensemble rund um das AEW Hochhauses in Aarau, in der Oberen Vorstadt befindet sich das Obergericht, sowie das Generralsekretariat der Gerichte Aargau. Im Dachgeschoss des 4- geschossigen Betonbaus aus den 60er Jahren befand sich die Bibliothek mit dazugehörigem Lesesaal. Diese Räumlichkeiten sollten als Büros für die ansässigen Gerichtschreiber und Praktikanten umgenutzt werden.
Entstanden sind zwei Doppelbüros, zwei Einzelbüros und 6 Arbeitsplätze in einem Grossraumbüro. Der zentrale Raum ist über das bestehende, grosszügige Oblicht belichtet und bietet durch die Verglasungen zu den Einzel- und Doppelbüros Sicht nach Aussen.
VORPROJEKT, BAUEINGABE: 2023
AUSFÜHRUNG: 2024




